Cena All inclusive: 3 990 000 Kč s DPH Cena stavba PLUS: 3 374 000 Kč s DPH Cena stavba Start: 2 536 400 Kč s DPH

Ceny jsou platné od 01.01.2026 a jsou včetně 12% DPH a bez základové desky. 

Popis domu Aries 59

Špičková kvalita je pro nás standard. Pracujeme s technologií DIFUTECH®, která udržuje v interiéru po celý rok příjemné klima. Zejména tepelná izolace zaručuje pohodlné bydlení s velmi nízkými náklady na vytápění. Domy stavíme ve 3 stupních dokončenosti: stavba Start, stavba Plus a dům All inclusive. Dům můžeme realizovat se základovou deskou nebo si základovou desku zrealizujete sami podle námi dodané projektové dokumentace. Uvedená cena je bez ceny za základovou desku.

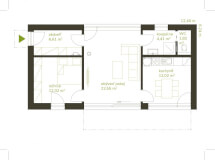
Půdorysy a výkresy domu

Dřevostavba 3+kk  má obdélníkový půdorys o rozměrech 6,04 x 12,24 m. Interiér má promyšlené dispoziční rozdělení domu na společenskou a klidovou. Nevyhovujeme vám půdorysné řešení? Upravíme celý dům podle vašeho přání.

Potřebujete zvětšit okna, upravit dispozici, nebo rovnou změnit rozměry tohoto domu? Žádný problém, obraťte se na vašeho regionálního poradce firmy ATRIUM. Ve firmě ATRIUM typové nebo individuální domy cenově nerozlišujeme.

CHCI UPRAVIT DISPOZICI   STUDIE DOMU

Počet místností 3+kk Zastavěná plocha 74.97 Užitná plocha přízemí 59.43 Užitná plocha celkem 59.43 Typ střechy plochá Sklon střechy
Cena All inclusive: 3 990 000 Kč s DPH Cena stavba PLUS: 3 374 000 Kč s DPH Cena stavba Start: 2 536 400 Kč s DPH

Ceny jsou platné od 01.01.2026 a jsou včetně 12% DPH a bez základové desky. 

Získejte online katalog zdarma Chci získat online katalog
Zobrazit detaily vybavení domu Zobrazit detaily

Kontaktujte nás

Zaujal vás konkrétní dům? Neváhejte nás kontaktovat, naši specialisté vám rádi vše vysvětlí.


Děkujeme za důvěru. Tým firmy ATRIUM.
Získejte online katalog zdarma Chci získat online katalog
Zobrazit detaily vybavení domu Zobrazit detaily