Lucida 110 sedlová střecha

Cena All inclusive: 5 868 000 Kč s DPH Cena stavba PLUS: 4 916 000 Kč s DPH Cena stavba Start: 3 699 400 Kč s DPH

Ceny jsou platné od 01.01.2026 a jsou včetně 12% DPH a bez základové desky. 

Popis domu Lucida 110 sedlová střecha

Novinka mezi inspiracemi s názvem Lucida 110 je navržena s různým typem střech. V tomto případě má dům sedlovou střechu se sklonem 23°. Druhý typ střechy je pultová. Přízemní dům navrhla Ing. arch. Simona Brezovanová. Dům má dispozici 4+kk. Podlahová plocha domu je pouze 110 m2. Přesto zde však dominuje velmi komfortně řešený obývací pokoj s kuchyní, jehož výměra přesahuje 40 m2. Další dva pokoje mají výstup na společnou terasu. Konstrukce zastínění terasy je velmi masivní s možností zakrytí např. polykarbonátem. Stínění je zajímavě řešeno jak pevnými, tak posuvnými stínícími prvky. Mnohé zákazníky by mohlo inspirovat i řešení koupelny s předvstupní chodbou, určenou např. pro osazení pračky a sušičky, nebo centrální ventilační jednotky. Součástí domu může být i velké stání pro několik aut, použitelné i pro skladování zahradní techniky.

Stání má rozměry 6 m x 12,5 m. Uvedená cena zahrnuje zastřešený carport s palubkovým podhledem bez závětrných výplní mezi sloupky..

Špičková kvalita je pro nás standard. Pracujeme s technologií DIFUTECH®, která udržuje v interiéru po celý rok příjemné klima. Zároveň tepelná izolace zaručuje pohodlné bydlení s velmi nízkými náklady na vytápění. Domy stavíme ve 3 stupních dokončenosti: stavba Start, stavba Plus a dům All inclusive. Dům můžeme realizovat se základovou deskou nebo si základovou desku zrealizujete sami podle námi dodané projektové dokumentace. Uvedená cena je bez ceny za základovou desku.

 Podívejte se, jak vypadá přízemní dům Lucida 110 s pultovou střechou.

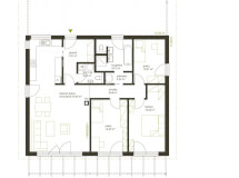
Půdorysy a výkresy domu

Dům má čtvercový půdorys o rozměrech 12,50 m x 10,50 m. Interiér má promyšlené dispoziční rozdělení domu na společenskou a klidovou část. Nevyhovuje vám půdorysné řešení? Upravíme celý dům podle vašeho přání.

Potřebujete zvětšit okna, upravit dispozici nebo rovnou změnit rozměry tohoto domu? Žádný problém, obraťte se na vašeho regionálního poradce firmy ATRIUM. Ve firmě ATRIUM typové nebo individuální domy cenově nerozlišujeme.

CHCI UPRAVIT DISPOZICI  STUDIE DOMU

Počet místností 4+kk Zastavěná plocha 131.25 Užitná plocha přízemí 110.22 Užitná plocha celkem 110.22 Typ střechy sedlová Sklon střechy 23°
Cena All inclusive: 5 868 000 Kč s DPH Cena stavba PLUS: 4 916 000 Kč s DPH Cena stavba Start: 3 699 400 Kč s DPH

Ceny jsou platné od 01.01.2026 a jsou včetně 12% DPH a bez základové desky. 

Získejte online katalog zdarma Chci získat online katalog
Zobrazit detaily vybavení domu Zobrazit detaily

Kontaktujte nás

Zaujal vás konkrétní dům? Neváhejte nás kontaktovat, naši specialisté vám rádi vše vysvětlí.


Děkujeme za důvěru. Tým firmy ATRIUM.
Získejte online katalog zdarma Chci získat online katalog
Zobrazit detaily vybavení domu Zobrazit detaily